VJ7 – Siófok

balatoni-nyaralo-a-nyugalom-oleleseben-fonyod

 

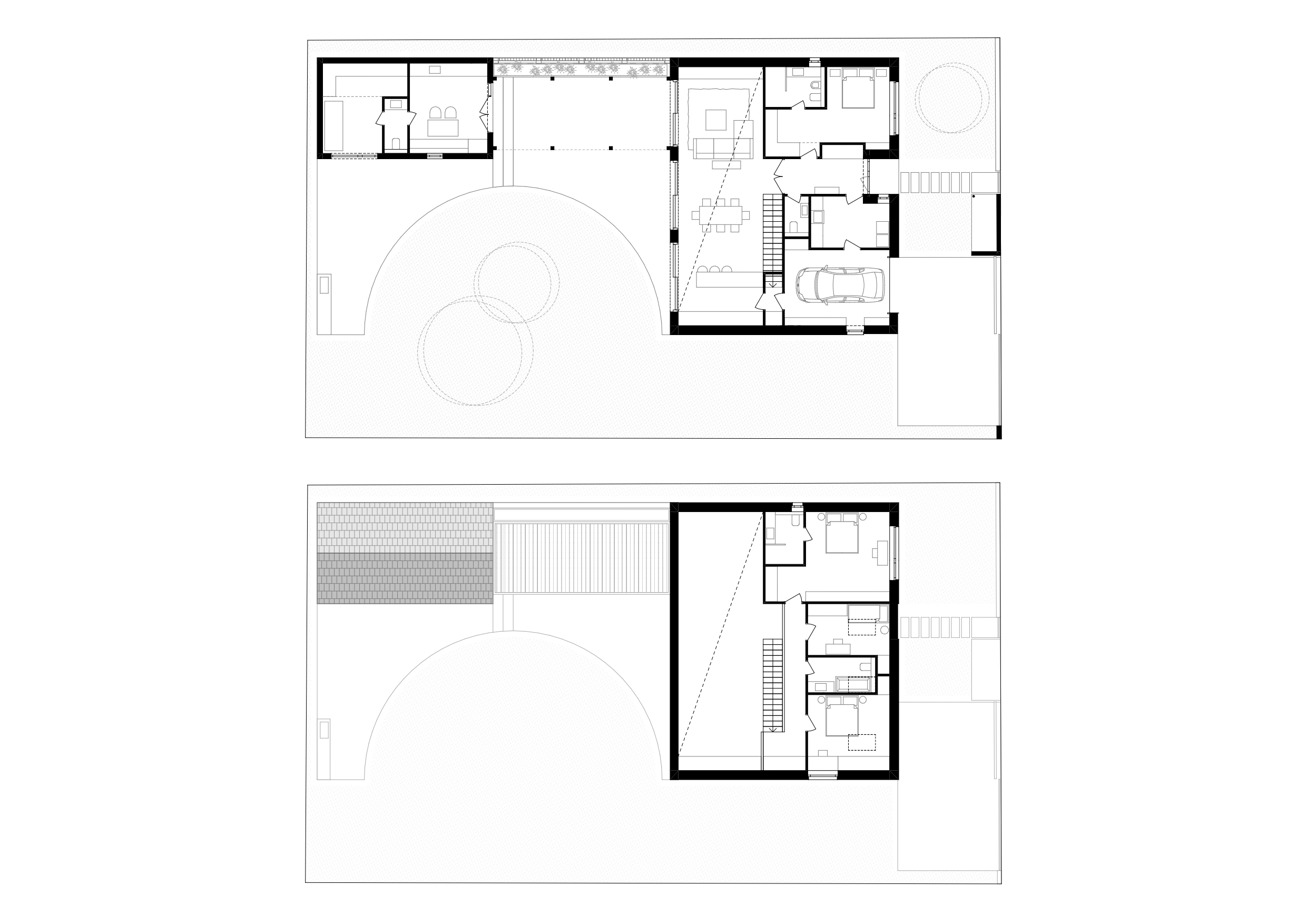
Egy Balaton melletti település csendes kis utcájába egy új családi házat terveztünk. A telek hátsó részében az északi oldalkerti határvonalhoz közel húzva már állt egy melléképület, melyet a megrendelő nyári konyhának és műhelynek meg akart tartani, épp ezért a tervezett főépület azonos oldali homlokzati falát a melléképület szélével egy síkba terveztük, így a két klinker burkolatot kapó tömeget egy anyagában azonos perforált téglafallal köthettük össze, kialakítva így az intim kerti terasz helyét. A határozott északi oldalkerti vonal ellensúlyozása képpen a jobban benapozott déli oldalon a két épületet már csak egy teraszburkolat köti össze, mely a nap járására is reagálva íves formában tervezett. Az ív végét egy kültéri pult zárja, mellyel a két épület már egy hármas kompozíció részeként jelenik meg. A fő épülettömeg utcával párhuzamos gerincű nyeregtetőt kapott, melynek hátsókert felé eső alacsonyabb hajlású része a nappali emeltebb mennyezetét adja, míg az utca felé eső meredekebb hajlású tetőben lakószobák kaptak helyet.

A tető északi oldalhatár felé eső oromfalán nem nyithattunk ablakot, ezért egy épülettömeget is meghatározó kiemelés mellett döntöttünk, mely pontosan a melléképület szélességében terveztünk. Ezen a szakaszon az épület magasabbá, az alacsony hajlásszögű tetősík folytatásaként félnyeregtetőssé vált. Az északi, magasabb szomszéd felé kiemelkedő tető és a déli, alacsonyabb szomszéd felé eső hagyományosabb nyeregtető természetes módon illeszkedik az utcaképbe. Ezzel a formálással a tető nem csak a tömegalakításban játszott nagy szerepet, hanem belső térélmény is ebből a formálásból fakad.

 

Megrendelő: magánszemély

Állapot: építés alatt

Év: 2023