P36 – Budapest

balatoni-nyaralo-a-nyugalom-oleleseben-fonyod

 

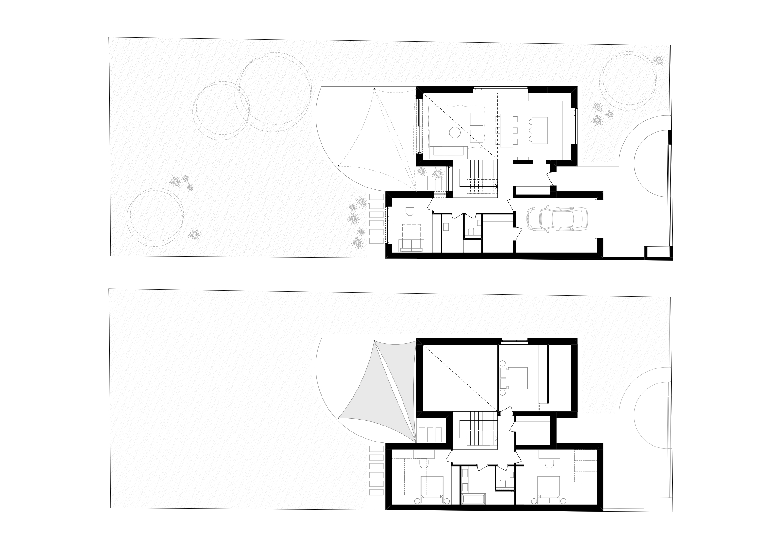
A Megrendelő egy III. kerületi épület felújításával keresett meg minket. Szerencsére az eredeti épület arányai igencsak egyediek és izgalmasak voltak, amit jólesett továbbgondolni.A kis telken nem egy épület állt, hanem két, utcával párhuzamos gerincű tömeg, két külön lépcsővel és szigeteletlen összekötő elemmel. Bár a több elem a telek mérete okán első ránézésre nem logikus,de ezt felülírta a nyugodt formálásuk és a kedves hangulat megtartása. Így a két tömeg közötti részt kicseréltük egy szigetelt, formailag a két szélső elemmel rímelő harmadik tömegre, mely a keskenysége okán vakolat helyett nagytáblás burkolatot kapott, hogy mint egy protézis vizuálisan elkülönüljön. Már csak azért is, mert ebben a tömegben kapott helyet az előszoba és lépcsőtér, így a szélső tömegekben azok négyzetmétereit vissza tudtuk nyerni, illetve a funcionális elosztásban is segített a központi közlekedő helyzete. A nagyobbik tömeg földszintjén kapott helyet konyha-étkező-nappali tere, mely részben kétszintessé tudott válni, a lépcsőtérrel összeköttetésben. A közbenső tömeghez hasonlóan itt is a utcai, déli fényeket beengedtük, hogy a kert felőli északi tájolás ellensúlyozva legyen. Az emeletén kapott helyett a szülői blokk. A másik tömegben a földszinten garázs, gépészet és vendégszoba, míg az emeleten két gyerekszoba kapott helyet fürdővel, háztartási helyiséggel.A szögletes alaprajzot a kertben íves formákkal finomítottuk, ilyen a személybejárat félköríves kialakítása és a hátsó terasz körcikkelyes burkolata.

 

Megrendelő: magánszemély

Állapot: építés alatt

Év: 2024